
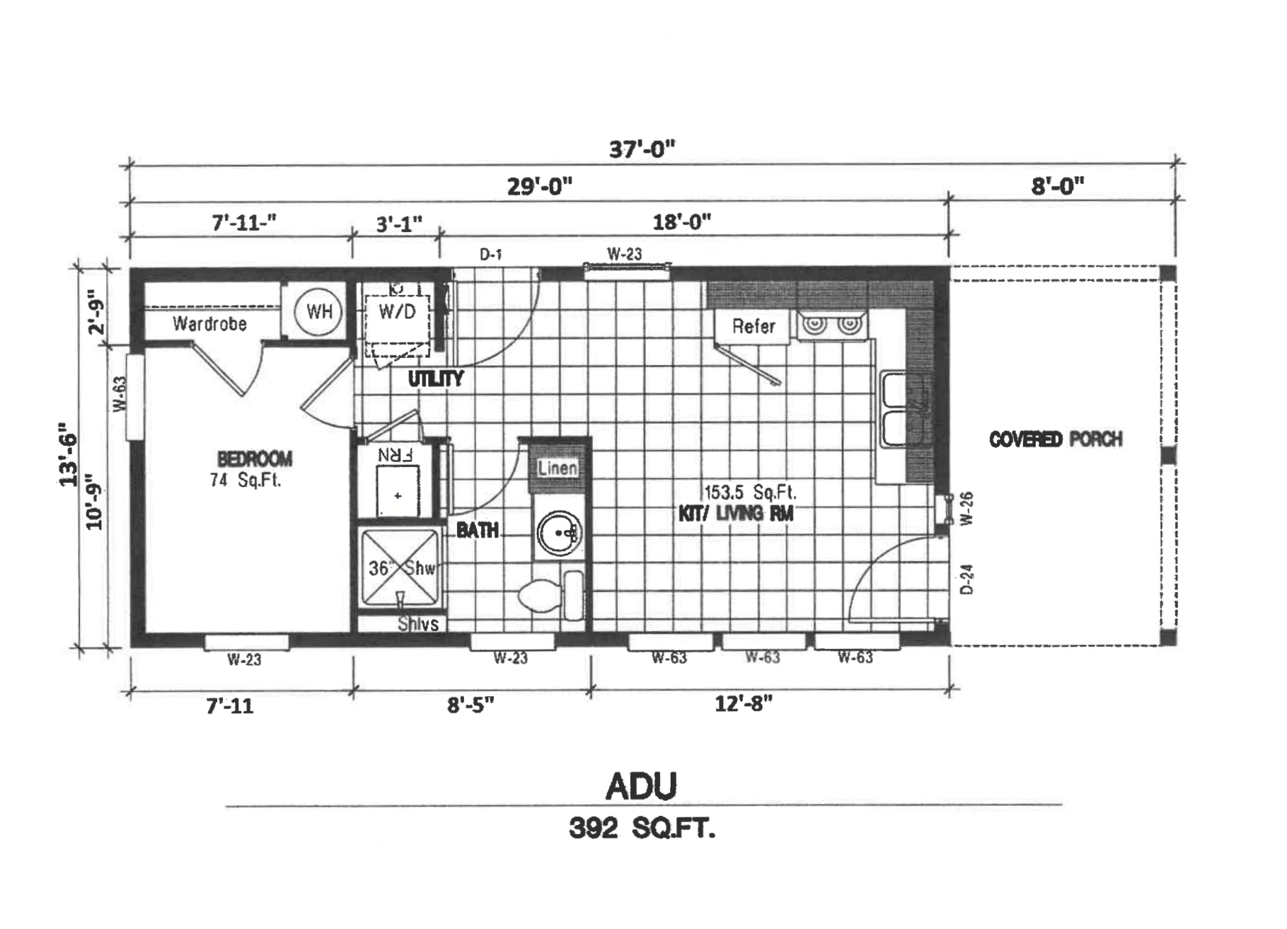
Casita 34-1 ADU
*All pricing and cost information displayed on this website is provided for general reference only. Surcharges may apply. Price is valid for new orders with standard features only and does not include additional costs such as tax, delivery, installation, permitting, upgrades, or additional fees.
**Images may not represent actual display models.















